東晟產品分類
聯系我們
廣東東晟密封科技有限公司
電話:
傳真:
地址:石碣鎮橫滘工業區偉業街
郵編:523302
E-mail:
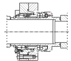
無水型集裝式機械密封件介紹
來源:廣東東晟密封科技有限公司更新時間:2016-06-16
無水型集裝式機械密封件介紹
無水型集裝式機械密封件如下圖所示:



